Padova. Recentemente è stato presentato il nuovo progetto dell’Architetto Renzo Piano che verrà realizzato nel quartiere dell’Arcella a Padova e che penderà il nome di Laboratorio di Quartiere. L’edifico sorgerà al posto degli immobili abbandonati e in disuso di proprietà della famiglia Bedeschi che saranno demoliti.
Alla presentazione erano presentila rettrice Daniela Mapelli dell’Università di Padova; il sindaco Sergio Giordani; il presidente della Fondazione Cariparo Gilberto Muraro; il coordinatore nazionale del gruppo G124 Edoardo Narne; Enrico del Sole, presidente degli Amici dell’università; e Anna Soatto dello studio Cortellazzo&Soatto.
Tutta la documentazione della conferenza stampa è consultabile a questo link .

Il progetto
La descrizione del progetto è tratta dalla presentazione ufficiale dell’intervento secondo cui verrà realizzato un nuovo fabbricato con una cubatura inferiore rispetto all’esistente (-41%), orientato sull’asse Est-Ovest. L’immobile sarà arretrato di 1 metro rispetto l’attuale confine di proprietà e organizzato su due livelli fuori terra. Gli affacci di tutti gli ambienti della nuova costruzione saranno delimitati a Nord e Sud con facciate continue in vetro ed alluminio, schermate da sistemi di tendaggi avvolgibili oscuranti posti all’esterno, per ridurre l’irraggiamento solare all’interno degli ambienti. L’accesso all’edificio avverrà attraverso una rampa e dei gradini, per superare il dislivello tra spazi esterni e interni.
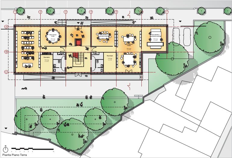
L’ingresso principale avverrà in corrispondenza della terza campata da Ovest che si immette nella hall a doppia altezza, da cui si snodano i percorsi verso gli ambienti del piano terra e del piano primo, raggiungibili mediante una scala e una piattaforma elevatrice. I locali del piano terra ospiteranno principalmente attività collettive e polifunzionali. In particolare, saranno realizzate tre sale polivalenti di diverse dimensioni in cui svolgere workshop, incontri ed esposizioni.


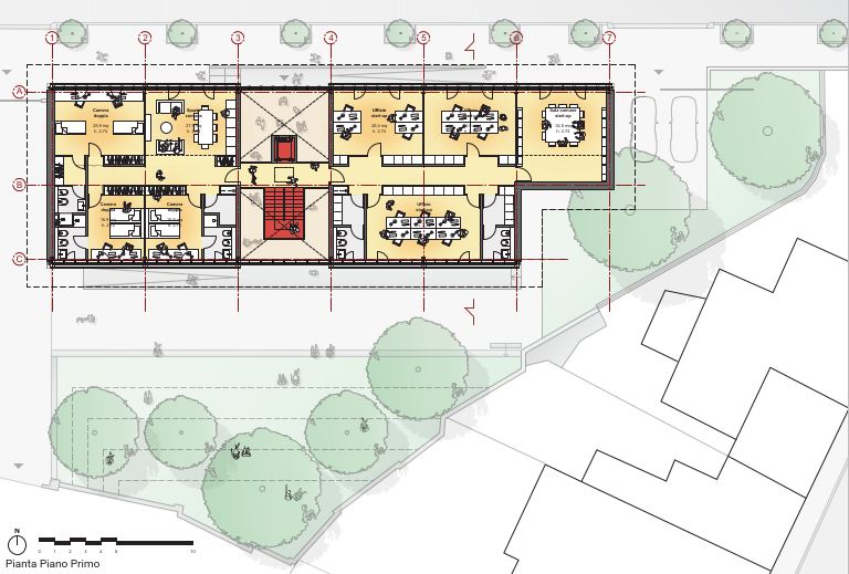
Il piano primo accoglierà invece spazi più riservati e destinati a funzioni direzionali e residenziali. Nell’ala Est è prevista la realizzazione di quattro uffici di circa 30 metri quadrati ciascuno, dotati di due servizi igienici e di due disimpegni tecnici.
Nella parte restante del piano (ala Ovest) sarà collocata una zona adibita ad alloggio-foresteria, progettata per ospitare temporaneamente professori, esperti , ricercatori interessati allo studio e alla pianificazione delle periferie e delle città del futuro. Il progetto prevede che gli ambienti di socialità e relazione si affaccino sulla strada pubblica, mentre quelli della zona notte sono rivolti verso il giardino privato.
Il cantiere dovrebbe iniziare tra novembre e dicembre del 2025 e finire ad inizio 2027




Committente: Comune di Padova, Università di Padova
Progettazione: Renzo Piano
Esecuzione lavori:
Importo lavori: 2 milioni (cofinanziato da Fondazione Cariparo e privati)
Tempistiche: entro inizio 2027
Localizzazione: viale Arcella- Padova