Ottobre 2025. È stato presentato oggi, 15 ottobre 2025, in Commissione Urbanistica e Verde del Municipio 1, il progetto di fattibilità tecnico-economica per la riqualificazione di piazza Santo Stefano. Una riqualificazione che attendavamo da sempre.
L’intervento, già proposto nel Bilancio partecipativo 2017, è considerato prioritario dal Comune di Milano, che intende restituire alla piazza – oggi utilizzata come parcheggio – la sua funzione originaria di luogo d’incontro e socialità, con particolare attenzione a studenti, lavoratori e residenti. L’obiettivo è coniugare tutela del patrimonio storico-artistico, innovazione e sostenibilità.





“Prosegue il nostro impegno – afferma l’assessora all’Arredo urbano, Quartieri e Decentramento Gaia Romani – per restituire lo spazio pubblico alle persone. Con questa riqualificazione diamo vita a una vera agorà pubblica per studentesse, studenti e lavoratori del centro, un luogo finalmente bello e accogliente dove potersi fermare e incontrare.”
“Quello di piazza Santo Stefano è un progetto di riqualificazione ambientale e sociale, fortemente voluto dal Municipio 1 – aggiunge l’assessora all’Ambiente e Verde Elena Grandi –. Trasformiamo una piazza monumentale oggi dominata dalle auto in uno spazio verde e accessibile, con nuovi alberi e materiali drenanti. È un tassello del percorso che renderà Milano sempre più una ‘città spugna’.”
“Con questo intervento – dichiara il presidente del Municipio 1 Mattia Abdu – si completa la riqualificazione del quadrante attorno al Duomo. Dopo piazza Missori, largo Augusto, largo Richini, via Pantano, San Babila e Cordusio, anche piazza Santo Stefano sarà restituita alla fruizione pedonale.”



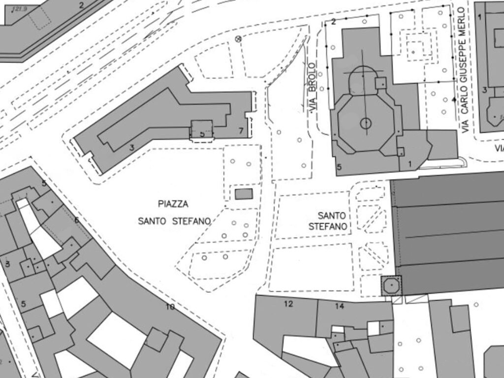
Il progetto riguarda 4.500 mq di superficie e prevede la rimozione dell’asfalto, sostituito con pavimentazioni tradizionali milanesi (masselli, lastre, cordoli e calcestre), più permeabili e integrate con il contesto storico.
Sono previsti percorsi accessibili, nuovi arredi urbani, illuminazione efficiente e a basso impatto energetico.
La nuova progettazione del verde occuperà circa 1.800 mq, con essenze arbustive e graminacee autoctone per ridurre il fabbisogno idrico e favorire biodiversità e resilienza climatica. Le aree verdi interesseranno in particolare l’ala sinistra del sagrato e via Larga/via Brolo, restituendo continuità e valore all’asse storico che collega il Verziere, Santo Stefano e via Festa del Perdono.
Il progetto è stato sviluppato nel pieno rispetto dei vincoli monumentali, paesaggistici e archeologici che caratterizzano l’area.

- Immagini: Roberto Arsuffi, Comune di Milano, Google Map
- Riqualificazione, Arredo Urbano, Verziere, Piazza Santo Stefano, Brolo,
Finalmente! È uno dei “ora non luoghi” più belli di Milano.
Ragazzi, sono stato piú volte in torre velasca come progettista per i nuovi format ristoranti e hotel. Via larga è tremenda mente brutta, priva di alberi, 6 corsie a 70 metri dal duomo. Non è possibile! Nessun paese civile puó per mettere ció.
Va completamente ripensata e fusa come estenzione di corso Vittorio Emanuele. È pur sempre il centro storico!
Bravissimo Carlo.
Quello che molti di noi dicono da tempo.
Rappresenta un muro/divario tra la zona pedonale del duomo e la parte più sud di città universitaria che potrebbe integrarsi alle pedonalizzazioni..
Hai perfettamente ragione
E pensa se un giorno il tribunale potesse diventare una grande biblioteca multifunzionale aperta alla città turisti convegni mostre studenti stranieri… un sogno
6 corsie? io rifarei un giretto per schiarirmi le idee
Ci sono 4 corsie, 2 per i mezzi pubblici e 1 corsia per i veicoli per senso di marcia.
Dovrebbero fare come b aires? così diventa tutto intasato traffico e smog?
Le auto proprio nin dovrebbero più passare li.
Problema risolto.
Zero traffico zero smog.
Solo taxi e mezzi pubblici e residenti con la targa registrata
Ma non è vero, ci sono esempi simili in altre città.
E’ brutta ma non c’è bisogno di dire cose non vere.
Ottima idea. Via Larga/Albricci sono le vie più brutte di Milano. E basterebbe poco, una fila di alberi, una nuova pavimentazione…
AttendAvamo? Si dice attendEvamo, voce del verbo attendEre.
Ma, ormai, in molti dicono vedAvamo, anziché vedEvamo, prendAvamo, credAvamo, ecc.
Spero sia solo una svista!
@Luigi, secondo me non c’è bisogno di tutta questa predica. L’italiano potrà essere migliorato, mentre il servizio che svolge questo blog è invece insostituibile: non esaspererei gli autori con questi commenti secondari, metti che poi si incazzino e smettano di scrivere. Saresti scusato solo se fossi ex professore di grammatica italiana in pensione! Buona giornata e non te la prendere, siamo tutti qui per informarci sui cambiamenti di Milano. G
A quando piazza San Sepolcro? Un vergognoso parcheggio
Sansepolcrista!
Alleluia!
Finalmente, in primavera e autunno il sagrato è pieno di ragazzi (studenti e studentesse) che pranzano o semplicemente chiacchierano dopo lo studio: è un peccato vederli sepolti tra le macchina parcheggiate spesso in modo incivile. Restituiamo questo spazio pubblico alle persone e contrastiamo la desertificazione urbana che causano questi parcheggi a cielo aperto!
Mi permetto anche di suggerire la pedonalizzazione di via Festa del Perdono, che frequento quotidianamente. Già di per sé è de facto pedonale, perché intensamente utilizzata dagli studenti della Statale; a volte però qualche incosciente pensa bene di sfrecciare in moto o in auto a 60 km/h facendo lo slalom tra i pedoni…è una situazione oggettivamente pericolosa!
Quello è un parcheggio per la polizia, mentre santo Stefano per i vigili, gli abitanti tutti a piedi….
Pronti per le lagne di qualche consigliere di zona 1? “gnoooooo i comunisti ci tolgono i parcheggi gnooooooo”
Haha! Ma infatti mi stupisce l’assenza di reazioni da parte dei milagnosi (“ci toglieteh i parcheggihhh!”)
Mah, a me sembra che i milagnosi siete comunque sempre voi 4 gatti fancazzisti che infestano questo blog con noiosissimi pluricommenti anti auto.
C’è da dire che il Municipio 1 è il più scandalosamente indietro di tutti, su pedonalizzazioni e piste ciclabili in rapporto alla popolazione residente ed allo stock di mezzi pubblici, metropolitane ed anche parcheggi pubblici che hanno.
Che la semi pedonalizzazione di Piazza Santo Stefano si faccia solo adesso e che non si parli di Piazza San Sepolcro è abbastanza ridicolo. Nemmeno nella posticcia “urbanistica tattica” si applicano un minimo….
Una delle zone più belle di Milano in quanto a chiese storiche e scorci architettonici!! finalmente ci arriviamo…
Avanti tutta per favore!!!
Milano come fa a pensare di attrarre intelligenze se si rende di fatto irraggiungibile? Il praticello senza parcheggio sotto – qui come ovunque – rispecchia l’ideologia di questo periodo, lontana mille anni dall’operosità e dalla concretezza che hanno fatto prospera la Lombardia.
Se non fosse per l’incipit sarei tentato di credere che il commento sia ironico.
Scusami Michele ma la soluzione quale ideologia dovrebbe rispecchiare?
Quella degli operosi anni ’60 quando le industrie pesanti contornavano gran parte della città?
Credi davvero che le “intelligenze” abbiano bisogno del parcheggio sotto il praticello?
Viaggia. Scopri nuove città perché leggere questo tuo commento nel 2025 fa ridere.
Bravo, infatti nelle altre città europee ci sono molti più parcheggi sotterranei.
Ma infatti da grande amante di interventi di riqualificazione come questo, io ho sempre sognato una riqualificazione di Piazza Santo Stefano, togliendo tutti quei parcheggi, MA creando un nuovo parcheggio sotterraneo. Mi spiace che non sia stato preso in considerazione.
Quelli che vengono in auto a milano non sono intelligenze.
Sono deficienze.
E tu li vuoi pure attirare?
Sei un genio pure tu.
C’è chi arriva in auto e chi in treno con le valigie di cartone come te.
Io che abito lì, in 5 anni, ho visto ridurre le strisce gialle per residenti, occupate da dehor di discutibile estetica, del 50% e non avendo garage posso giurare di impiegare anche un’ora a trovare parcheggio. Benissimo dunque l’area verde, che spero non diventi per cani e persone in difficoltà ma sarebbe auspicabile anche non rendere la vita impossibile a chi ci abita magari prevedendo un parcheggio sotterraneo. Inoltre da quando molte aere sono diventate pedonali, dopo una certa ora non essendoci più passaggio di auto, sono meno sicure.
Ok Karen
Giovanna tocca tempi molto concreti: i residenti che hanno il loro tran-tran, la sicurezza se viene a mancare il passaggio. Aggiungo io il commercio. Considerare quesri arogomenti da “Karen” è almeno riduttivo.
Finalmente!
Basta che non mettano giù gli orrendi e scomodissimi cubetti di granito con cui hanno reso impercorribile a piedi via Pantano…