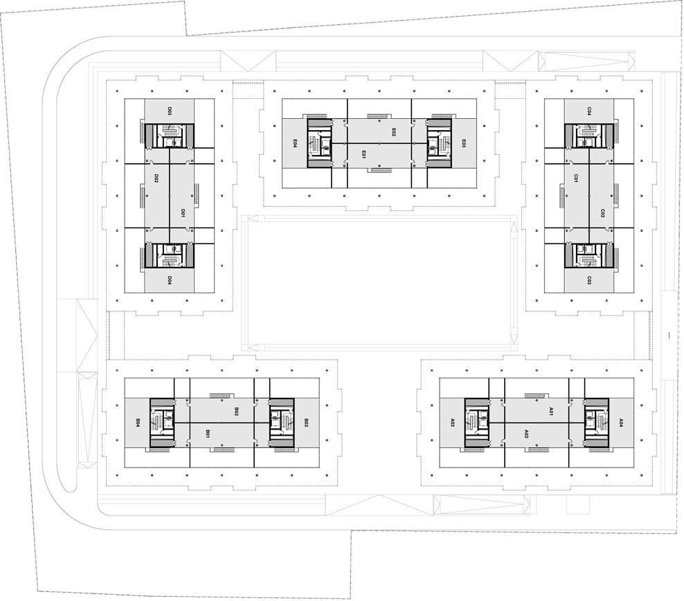
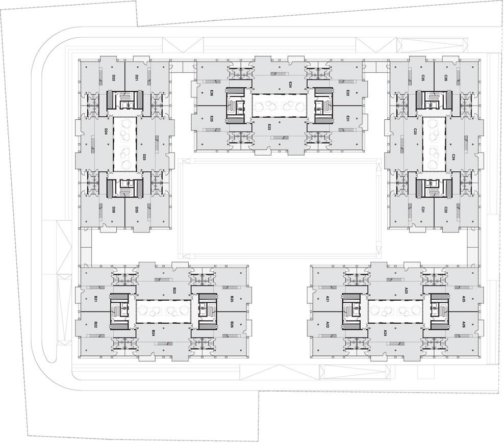
Tortona 37 è un complesso architettonico polifunzionale formato da cinque edifici bianchi che si organizzano attorno a un ampio giardino centrale, configurando una grande corte interna aperta alla città. Il progetto occupa una superficie di circa 25.000 metri quadrati e rappresenta un modello urbano ad alta densità e a usi misti, pensato per rispondere alle esigenze contemporanee di integrazione funzionale, riduzione degli spostamenti e sostenibilità ambientale. La concentrazione di attività diverse nello stesso luogo contribuisce infatti a limitare la mobilità su lunghe distanze e a migliorare la qualità urbana complessiva.
Gli edifici si sviluppano su sei livelli e sono composti da unità strutturali a doppia altezza, con piante aperte e mezzanini che garantiscono grande flessibilità spaziale. Questa configurazione consente di ospitare funzioni differenti — come loft, studi professionali, uffici, negozi e ristoranti — facilmente adattabili alle esigenze specifiche degli utenti. La copertura piana è valorizzata da un giardino pensile con spazi di incontro e piazze interne, che offrono ampie viste sull’orizzonte urbano.
Il progetto integra architettura e impianti in una strategia energetica complessiva, basata sull’uso della geotermia, di sistemi radianti e di una ventilazione efficiente per garantire elevati livelli di comfort interno. I materiali impiegati, come vetro, legno e vegetazione, sono concepiti per evolversi nel tempo, mentre l’uso di cemento autopulente contribuisce alla riduzione dell’inquinamento locale. Il complesso assume infine un forte valore iconico grazie a una facciata continua bianca che avvolge gli edifici, creando un’immagine unitaria e riconoscibile capace di definire una nuova dimensione urbana.
Complesso polifunzionale Tortona 37
via Tortona 37, Milano
Progetto: Matteo Thun & Partners, Luca Colombo
Committente: Pioneer Investment Management SRG spa
Area edificata totale: 30.000 m2
Progetto: 2003
Realizzazione: 2009














Referenze immagini: Thun & Partners
Milano, Via Tortona, Porta Genova, Architettura, Thun & Partners