L’area interessata dal progetto è individuata dal P.R.G. di Milano nella zona B di recupero R 4.1 e si affaccia a Sud sulla via Muratori, ad Ovest sulla via Vasari; attualmente in quest’area insiste un edificio risalente alla fine degli anni ’30 di 2/3 piani e da un garage a rotazione (ex autosalone) del 1962 a 2 piani interrati.
Il progetto prevede la demolizione dell’ edificio esistente fuori terra,la conseguente realizzazione di un edificio residenziale per un totale di circa 4500 mq di S.L.P. e la ristrutturazione dell’ edificio interrato destinato ad autorimessa.
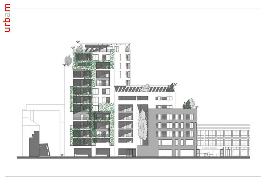
L’edificio assume in pianta la forma di una “L” ed essendo inserito in un contesto ambientale altamente urbanizzato, recupera gli allineamenti delle cortine edilizie di via Vasari e via Muratori, dove il confronto con i due edifici confinanti ha portato a rispettarne il continuum anche in altezza, mentre una torre di 12/14 piani si sviluppa nell’angolo alla confluenza tra le due vie.

La scelta di sviluppare una torre sull’angolo del lotto è dettata dal fatto che, oltre, in corrispondenza ad essa, all’incrocio delle vie Vasari e Muratori, esiste un edificio (l’UNA Hotel) di tali dimensioni, con il quale, a livello urbano, è possibile creare un “dialogo volumetrico”. Dal punto di vista tecnico si è optato per uno sviluppo della struttura in cemento armato, mentre la scelta di dare elevata qualità al manufatto ha portato ad una particolare attenzione allo sviluppo tecnologico in materia di isolamento (termico e acustico) e contenimento energetico dell’edificio; logge, ampie vetrate, sistemi frangisole, facciate ventilate, etc contribuiscono, oltre a dare una particolare valenza architettonica, a rendere gli alloggi più confortevoli.
Edificio molto bello, movimentato ed elegante. Mi piacciono molto anche i materiali e le persiane per chiudere le finestre.











bello, piace molto anche a me.