Milano, Monza.
Nei prossimi giorni sono attesi i decreti ministeriali che renderanno operativi i finanziamenti aggiuntivi per il prolungamento della Linea M5 fino a Monza. Si tratta dell’ultimo passaggio necessario per avviare la gara d’appalto, che dovrebbe concludersi entro la fine del 2026. L’inizio dei lavori è previsto per gennaio 2027, con termine nel marzo 2033; dopo collaudi e fase di pre-esercizio, l’attivazione della nuova tratta è prevista entro dicembre 2033.
Il cronoprogramma è stato illustrato durante un incontro pubblico a San Rocco alla presenza di Salvatore Barbara, responsabile della Direzione Infrastrutture del Comune di Milano, insieme alle ingegnere Maria Giovanna Limongelli e Francesca Galli della società MM S.p.A..


Un investimento da 1,9 miliardi
Il costo dell’opera è passato da 1,3 a circa 1,9 miliardi di euro. L’infrastruttura non servirà solo a collegare Milano e Monza, ma anche a migliorare gli spostamenti interni alla città. Per questo motivo non tutte le fermate saranno dotate di parcheggi di interscambio, così da limitare l’afflusso di traffico proveniente dall’hinterland e dalla Brianza.
Secondo l’assessora alla Viabilità Irene Zappalà, il progetto rappresenta anche un’occasione di riqualificazione urbana. Tra gli interventi più rilevanti c’è quello previsto lungo Via Borgazzi, dove verranno realizzati sistemi di drenaggio e fitodepurazione delle acque piovane, nuove piste ciclabili, aree verdi e interventi di depavimentazione nel tratto tra Via Bettola e Via Marsala, in collaborazione con Brianzacque.
La nuova tratta
L’estensione della linea aggiungerà 13 chilometri e 11 stazioni agli attuali 15 chilometri e 19 fermate della M5. La linea sarà quasi interamente sotterranea e verrà realizzata con due talpe meccaniche che scaveranno in direzioni opposte, verso Sesto San Giovanni e verso Monza.
Dopo la stazione di Bignami, le nuove fermate saranno:
- Testi-Gorky (Cinisello/Sesto) (Situata nei pressi del Parco Nord)
- Rondinella-Crocetta (Cinisello) (Posizionata all’altezza di via Don Bosco)
- Lincoln (Cinisello) (posizionata in via Lincoln)
- Monza Bettola (interscambio con la Linea M1)
- Campania (Monza)
- Marsala (Monza)
- Monza FS (Monza)
- Trento e Trieste (Monza)
- Parco Villa Reale (Monza)
- Ospedale San Gerardo (Monza)
- Polo Istituzionale (Monza)
Gran parte degli scavi avverrà in profondità, ma durante la fase di cantierizzazione saranno comunque inevitabili disagi alla viabilità.

Le stazioni a Monza
Le fermate nel territorio monzese saranno sette: Campania, Marsala, Monza FS, Trento e Trieste, Parco Villa Reale, Ospedale San Gerardo e Polo Istituzionale.
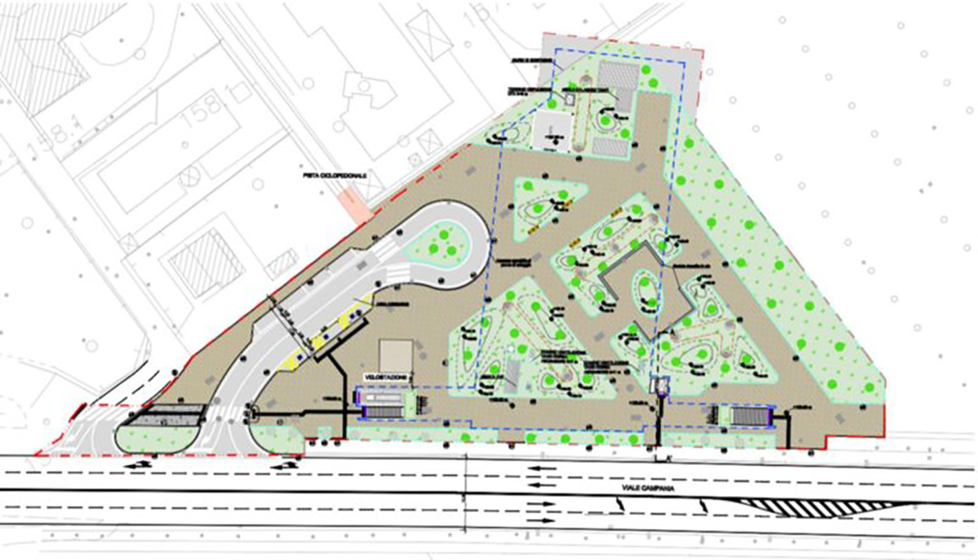
Viale Campania
La stazione sarà collocata nella parte nord del viale, vicino al ristorante PizzAut. In superficie sono previsti alcuni posti auto per utenti fragili, una zona “kiss and ride” e una piccola piazza verde.

Via Marsala
Sorgerà all’incrocio con le vie Goldoni e Mauri. Rimarrà l’attuale semaforo e non verrà realizzata la rotonda ipotizzata nelle prime fasi del progetto.
Monza FS
La fermata verrà costruita nell’area dell’attuale distributore Esso su Corso Milano. Sopra la stazione nascerà una piazza con verde e panchine e sarà rialzato il tratto di strada con attraversamenti pedonali. È allo studio anche un possibile collegamento pedonale sotterraneo con la stazione ferroviaria in collaborazione con Rete Ferroviaria Italiana.

Trento e Trieste
La stazione sarà realizzata sotto il parcheggio di Piazza IV Novembre, con accessi verso Piazza Trento e Trieste e verso l’Arengario di Monza. Prevista anche la riqualificazione delle pavimentazioni delle piazze circostanti.

Parco Villa Reale
La fermata sarà sotto il parcheggio di Porta Monza, con accessi sia verso Viale Brianza sia verso il Parco di Monza, nel rispetto degli orari di apertura del parco.

Ospedale San Gerardo
La stazione verrà costruita sotto il parcheggio di fronte all’Ospedale San Gerardo, con due uscite: una verso l’ospedale e una verso le scuole della zona.

Polo Istituzionale
Il capolinea sarà realizzato sotto l’area tra l’edificio della Provincia di Monza e della Brianza e il bosco dove è previsto un nuovo studentato, progetto che ha suscitato un acceso dibattito.

Parcheggi e deposito
I principali parcheggi di interscambio saranno al Polo istituzionale e al Parco, oltre ai circa 2.500 posti previsti nell’area di Bettola, nodo di scambio tra M5 e M1. Al Polo istituzionale si aggiungeranno circa 400 posti auto sotterranei accanto ai parcheggi già presenti presso il centro commerciale Bennet.
Il deposito-officina della linea sorgerà invece nell’area agricola di Casignolo, su una superficie di circa 18 ettari. Ospiterà il rimessaggio dei treni, officine di manutenzione, impianti di lavaggio, uffici e una centrale di controllo. Per ridurne l’impatto ambientale sono previste circa 12.000 nuove alberature, tetti verdi e un bacino per la raccolta e la fitodepurazione delle acque piovane.


- Referenze immagini: Roberto Arsuffi; Google map
- Milano, Monza, Metropolitana, Trasporti, Mobilità, M5, Metro 5, Metro Lilla, Cinisello Balsamo, Sesto San Giovanni, viale Fulvio Testi, M1,
Curioso che per decenni Monza ha anelato l’ “indipendenza” da Milano e ora che l’ha ottenuta spinge per una metro che la colleghi al capoluogo. Comunque, sono “solo” 7 anni che se ne sta parlando, speriamo che in un modo o nell’altro se ne venga a capo
Speriamo siano veloci
Per ora sono previsti otto anni.
Penso che sia un opera che porterebbe a decongestionare il traffico in modo corposo per renderlo fluido. Inoltre permetterebbe ai milanesi di poter usufruire del PARCO DI MONZA ogni fine settimana.