Milano, Porta Volta.
Ottobre 2025. Mentre il cantiere per la costruzione del palazzo (piramide) destinato al Museo della Resistenza a Porta Volta procede, il Ministero della Cultura – che lo scorso aprile aveva già stanziato 6,5 milioni di euro – sembra ora aver portato il finanziamento complessivo a 14 milioni di euro per consentirne il completamento.
L’aggiornamento arriva dopo la richiesta del sindaco di Milano, Beppe Sala, al ministro della Cultura Alessandro Giuli di nuovi fondi per portare a termine sia la Biblioteca Europea di Informazione e Cultura (Beic) sia il Museo Nazionale della Resistenza. Sala ha spiegato che per la Beic mancano circa 30 milioni di euro, mentre per il museo la cifra necessaria sarebbe leggermente inferiore. Il sindaco ha inoltre sottolineato la necessità di definire una governance chiara per entrambe le istituzioni.
Il ministro Giuli ha replicato definendo il progetto della Beic “invecchiato” e da “riconfigurare”, anticipando così uno slittamento dei tempi di apertura. Ha precisato che i ritardi non dipendono dal Ministero e che sarà necessario un “ragionamento di sistema” per individuare le risorse, criticando al contempo i vincoli imposti dal bilancio statale. Giuli ha aggiunto che la nomina del presidente della Beic avverrà solo dopo la revisione del progetto, ricordando infine che per il Museo della Resistenza sono già stati stanziati 14 milioni di euro.












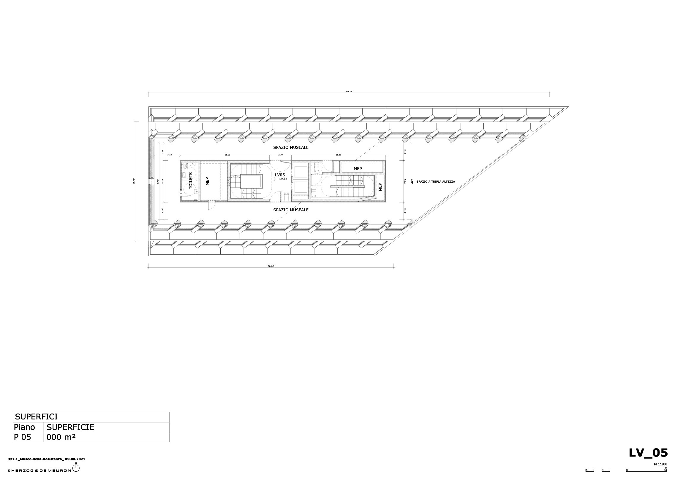
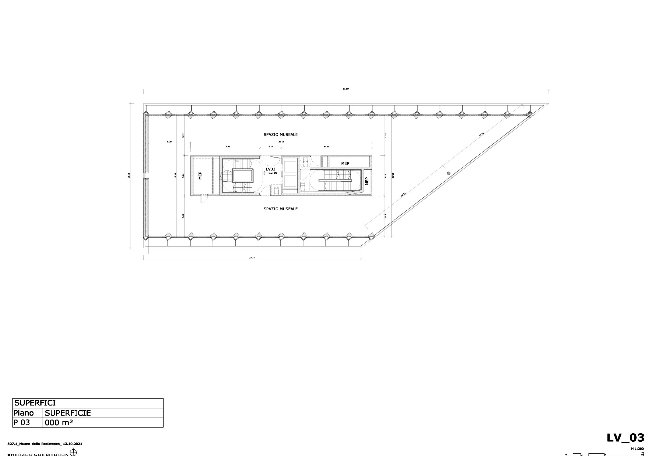
L’edificio, progettato dallo studio Herzog & de Meuron come parte del complesso per uffici e spazi culturali della Fondazione Feltrinelli, che si trova sul lato opposto dei due caselli di Porta Volta ed è stato completato nel 2015. Il completamento del nuovo museo è previsto entro due anni: una volta terminato, diventerà la sede del Museo Nazionale della Resistenza, con ampi spazi pubblici e un giardino aperto alla città.
Questo progetto ha avuto una gestazione lunga e difficile anche per via del comitato di cittadini del quartiere nato dopo la rimozione del distributore di benzina nel 2017 e il giardino spontaneo sorto dopo l’abbandono dell’area per anni prima dell’avvio del nuovo progetto.






I lavori, avviati nel 2023 nell’area di Porta Volta, proseguono regolarmente. Dopo uno scavo profondo di circa 14 metri per la realizzazione degli ambienti destinati ad archivi e servizi, sono iniziati gli interventi di innalzamento delle strutture.









All’interno dello stesso progetto è prevista – e auspicata – anche la riqualificazione del viale-parcheggio di viale Bastioni di Porta Volta.








Ci auguriamo inoltre che vengano migliorati piazzale Baiamonti (foto sopra) e il giardino Lea Garofalo (foto a seguire), in particolare con la rimozione del muro pericolante su viale Montello.





Milano | Porta Volta – Piazzale Baiamonti (area compresa tra Via Alesandro Volta, viale Bastioni di Porta Volta e Viale Montello) > MUSEO NAZIONALE DELLA RESISTENZA AI BASTIONI DI PORTA VOLTA (MiC – Ministero della Cultura) (Comune di Milano)*** (nella mappa Urbanfile codice: PV1) (secondo edificio Herzog & de Meuron) (uso pubblico)
- inizio cantiere: (demolizione distributore benzina 2017) 2023
- conclusione cantiere:
- committente: MiC – Ministero della Cultura
- progetto architettonico: Herzog & de Meuron (SD Partners srl – Architettura e Ingegneria) (H&dM – Herzog & de Meuron Ltd – Basilea, Svizzera) (Ariatta Ingegneria dei Sistemi spa) (Luraschi & Associati – Ingegneria e Architettura) (Agro Service srl – Cormano, MI)

- Referenze immagini: Roberto Arsuffi; Herzog & De Meuron;
- Porta Volta, Herzog & De Meuron, Viale Montello, viale Crispi, Viale Bastioni di Porta Volta, piazza Baiamonti, Museo Nazionale della Resistenza
Un sogno per la zona: pedonalizzare tutta Pasubio per collegare l’area pedonale di Garibaldi alla zona pedonale di Paolo Sarpi.
Milano ha fame di aree pedonali di qualità, si è visto il successo delle aree pedonali di Porta Nuova e appunto di Paolo Sarpi.
È un’ingiustizia che zone così belle e importanti siano sprecate in parcheggi inutili e stradoni che andavano bene negli anni 60.
Ma invece quando verrà sgomberato il casello occupato da tre bambascioni marxisti leninisti?
Il punto forte della loro aggregazione far defecare i “compagni” sul retro
Con tutti i problemi di quella zona tu ti preoccupi dei marxisti leninisti? Quello è proprio l’ultimo dei problemi, anzi non è mai stato un problema.
Sgomberare subito (al mattino come al pomeriggio non c’è mai nessuno, cambi serrature e via), ripulire lo schifo e assegnare i locali a qualche associazione che merita davvero
Ognuno ha le preoccupazioni che vuole o devi deciderle tu?
E ognuno può esprimere le opinioni che vuole o solo quelle che danno ragione a te?
Veramente sono il vero problema!
Solo una domanda: Ma chi andrà mai a visitarle un museo dedicato alla resistenza? I fatti sono noti. Lettere,fotografie e filmati sono disponibili ovunque in rete. Se qualcuno pensasse che le ultime generazioni non conoscono i fatti, meglio i podcast o,al limite, lezione di storia nelle scuole
Mai sentita stupidaggine più grande. Con il tuo ragionamento possiamo anche chiudere tutte le scuole e i musei che facciamo prima, tanto tutto è disponibile online.
Bene, vedremo dopo qualche tempo quanto sarà l’afflusso del pubblico a giustificare un tale investimento. Non si parla del Louvre o del museo del Novecento.
Sta tranquillo che verrà visitato…eccome se verrà visitato. Dalle scolaresche in primis.
Per riempire il museo obbligheranno intere comitive di pensionati cgil, bocciofile e rsa, interi oratori con preti da concilio vaticano II, tutte le comunità fluide, gli asili, le elementari, le medie e le superiori
Mi dispiace, ma non sono fascista. Ritengo doveroso festeggiare e ricordare la Resistenza che ha liberato l’Italia dalla dittatura ma continuo a sostenere che un museo, figlio a mio parere solo di una volontà autocelebrativa , sia uno spreco di denaro.Mia opinione.
E niente, chi non canta bella ciao con loro è ignorante e fascista.
Musro nazionale della Residenza:
1.400 metri quadrati (Slp) effettivi 1.260 metri quadrati di esposizioni al costo di € 24.000.000 + € 2.000.000 di varianti.
Classe energetica B.
Neanche nel quadrilatero della moda hanno questi costi.
Nostri soldi.
I commenti qui rasentano il ridicolo.
Chi dice che non serve aprire un museo perché i fatti sono noti e ci sono podcast. E chi parla di costi al m2 rispetto ad un’abitazione.
Argomentare con discorsi del genere è imbarazzante. Per cortesia aprite qualche libro, studiate, aumentate le vostre sinapsi e smettetela di inquinare il web. Fate male alla società, in questo stato di piattezza intellettuale.
Insomma, non si può avere un’opinione sull’utilità o meno di un museo senza prenderti dell’ignorante dal sincero democratico poco qui sopra che tutti i giorni chi ammorba con i suoi ciclopistolotti anti auto peggio di wf, non si può porre dei dubbi sul costo spropositato del costo per la realizzazione dello stesso (tra l’altro il paragone tra i costi al mq per le abitazioni e per un museo ci sta eccome invece e sono decisamente maggiori quelli per le abitazioni non per tanto la richiesta di vendita ma per la sua realizzazione, se le sue sinapsi sono così abbondanti potrebbe dedurlo anche se non è architetto), perché così inquiniamo il web.
La loro superiorità morale non ce lo permette, punto.
Bravo, sono completamente d’accordo con te, è imbarazzante leggere tanta ottusità!!!
Noi si aspetta ancora i € 49.000.000 di rimborsi elettorali indebiti della Lega, faccia lei…
Museo nazionale della Resistenza:
1.400 metri quadrati (Slp) effettivi 1.260 metri quadrati di esposizioni al costo di € 24.000.000 + € 2.000.000 di varianti.
Classe energetica B.
Neanche nel quadrilatero della moda hanno questi costi.
Nostri soldi.
Questa storia del museo è una porcata in tutti i sensi. Fatta da una Giunta di sinistra (o dio ma in quale film? Magari, di sinistra!!!) piegata davanti a interessi francrschiniani antichi.
Bravo, sono completamente d’accordo con te, è imbarazzante leggere tanta ottusità!!!