Milano, Porta Genova.
Novembre 2025. Abbiamo raccolto un po’ di cantieri nel territorio di Porta Genova, da Corso Genova a viale Papiniano e via Savona, con qualche novità e qualche “dispiacere”.
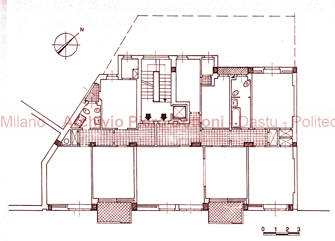
CORSO GENOVA 40
Corso Genova 4 è stato “impacchettato” dalle impalcature per essere sottoposto ad un intervento di ristrutturazione sperando non venga stravolto eccessivamente dall’intervento, anche perché si tratta di un palazzo firmato da uno dei maggiori architetti del dopoguerra di Milano, Piero Bottoni. Un edificio che forse non ha mai subito alcun intervento di restauro sin da quando venne realizzato (e si vedeva).
L’edificio per abitazioni e negozi di Corso Genova 4 è un edificio costruito tra il 1949 e il 1950 su progetto dell’Architetto Piero Bottoni e l’ingegnere Carlo Turus.





Nel lotto tra corso Genova e le vie San Vincenzo e Sapeto, distrutto dai bombardamenti del 1943, l’ingegnere Carlo Turus deve ricostruire un edificio. Non soddisfatto del proprio progetto, coinvolge l’amico architetto Piero Bottoni, già collaboratore durante la guerra. Come in altri suoi interventi, Bottoni mira a ricomporre la continuità della cortina edilizia e cerca di ottenere dal Comune un vincolo che uniformi l’altezza dei nuovi edifici dell’isolato, senza però riuscirci.
Si concentra quindi sul solo edificio da realizzare con Turus, creando un piccolo capolavoro: una facciata equilibrata e innovativa, ispirata al neoplasticismo, con logge verticali in ombra e balconi sporgenti rivestiti di piastrelle bianche e indaco. Il coronamento dell’edificio è studiato in modo da non chiudere rigidamente il fronte ma lasciarlo aperto a una più articolata composizione urbana.
Milano – PORTS GENOVA – Corso Genova 4 > Edificio per abitazioni e negozi Corso Genova 4 (nella mappa Urbanfile codice: PG19) (residenziale commerciale) (ristrutturazione) (riqualificazione) (manutenzione straordinaria)
- inizio cantiere: (edificio costruito nel 1950) 11-2025
- conclusione cantiere: (presunto luglio 2026)
- committente: VIGESA Srl
- progetto architettonico: (progetto originario arch. Piero Bottoni + inge. Carlo Turus) Arch. Hugo Mura




VISTA Living Amphiteatrum Conca del Naviglio 20
Dopo la demolizione nel 2023 dell’ex hotel AllegroItalia Espresso Darsena di via Conca del Naviglio 20, a due passi da Corso Genova e dal costruendo Parco dell’Anfiteatro, sono partiti i lavori nel cantiere per la costruzione di un nuovo edificio residenziale Living Amphiteatrum, progettato dal team di Arassociati.


Milano – Porta Genova – Via Conca del Naviglio 20 > ex Hotel AllegroItalia Espresso Darsena > VISTA “Living Amphiteatrum” (Beni Reali spa) (Quintia spa)(nella mappa Urbanfile codice: PG6)
- Nuovo edificio residenziale (PT + 8 piani)
- progetto architettonico: (Arassociati Studio di Architettura)
- advisory & agency: Dils
- link: Conca del Naviglio 20 – Arassociati
- link: Vista Living – Vivi il fascino della storia






CANTIERE ACQUEDOTTO COMUNALE CANTORE
Nell’ampio Piazzale Antonio Cantore, dove si trovano i due piccoli caselli del dazio di Porta Genova, sul versante nord sorge l’impianto della Centrale dell’Acqua Potabile dell’acquedotto di Milano. (nella mappa Urbanfile codice: PG14)
La centrale di Piazza Antonio Cantore, attiva dal 1935, originariamente disponeva di 13 pozzi che prelevavano acqua dalla falda a circa 21 metri di profondità, con una portata totale di 410 litri al secondo. Rifatta nel 1971, ristrutturata nel 1981 e aggiornata nel 2009 con filtri a carbone attivo, oggi è dotata di una vasca da 1.291 m³ e di 16 pozzi profondi fino a 150 metri.
Sono in corso lavori di ristrutturazione delle coperture, del campo pozzi e della rete fognaria. La costruzione della centrale portò alla scomparsa di “due boschetti” presenti nell’area; in seguito furono realizzati un podio per i dehors dei locali e una zona a prato. Sperando che a conclusione dell’intervento l’area sovrastante venga sistemata a verde, per migliorare un piazzale oggi dominato da asfalto e parcheggi.











Crespi Porta Genova
In via Daniele Crespi 16 (da non confondere con le altre vie Crespi: Beniamino in zona Maciachini, Pietro a NoLo e Gaetano Crespi a Lambrate)
Qui verrà costruito un nuovo edificio residenziale, Crespi Porta Genova, ispirato dalle belle architetture degli anni Cinquanta, è dello studio architetto milanese Massimo Magaldi.


Milano – Porta Genova – via Daniele Crespi 16 > Crespi Porta Genova (nella mappa Urbanfile codice: PG5) (residenziale) (nuova costruzione con demolizione)
- inizio cantiere: marzo 2023
- conclusione cantiere: (previsto 09-2025)
- committente: CM Srl
- progetto architettonico: Architetto Massimo Magaldi


Papiniano 48
Ormai le indagini della Procura stanno “setacciando” molti cantieri e non ultimo è quello di viale Papiniano 48.
Per viale Papiniano 48 la Procura ha disposto il sequestro preventivo d’urgenza del nuovo edificio in costruzione (otto piani fuori terra e due interrati). Secondo gli inquirenti, l’intervento è stato illegittimamente qualificato come ristrutturazione tramite una semplice Scia, mentre avrebbe dovuto essere considerato nuova costruzione, poiché ha comportato la totale demolizione dell’edificio precedente e la realizzazione di un fabbricato più alto e voluminoso.



Per questo risultano indagati il direttore dei lavori Mauro Colombo e l’imprenditore Salvatore Murè, legale rappresentante delle società coinvolte.
La Procura contesta anche l’uso, da parte del Comune di Milano, della circolare 1/2023, ritenuta in contrasto con la normativa nazionale: la giurisprudenza, sostengono le pm, ha chiarito che l’art. 41 (norma fondamentale sul governo del territorio) non può essere disapplicato dalle Regioni. Lo stesso Comune, infatti, ha sospeso la circolare nel marzo 2024 dopo altre indagini simili.
Il sequestro è stato disposto d’urgenza perché i lavori stavano proseguendo velocemente nonostante le comunicazioni del Comune che indicavano l’invalidità del titolo edilizio. Ora spetta al giudice per le indagini preliminari decidere sulla convalida. Questo quanto riportato sul Corriere della Sera di ieri 13 novembre 2025.

Qualcuno sostiene che sia stato violato il vincolo paesaggistico. Onestamente, nonostante ci si trovi a ridosso dei bastioni del 1500, attorno ci sono solo mostruosità della metà del Novecento. Non vogliamo dire che si debba chiudere un occhio, ma a volte si lasciano passare degli scempi quando andrebbero veramente fermati.
Milano – PORTA GENOVA – Viale Papiniano 48 > NOME (nella mappa Urbanfile codice: PG12) (residenziale) (nuova costruzione con demolizione)
- inizio cantiere: genanio 2024 (demolizione), settembre 2025 avvio lavori.
- conclusione cantiere:
- committente: Papiniano 48 Srl
- progetto architettonico: Architetto Michel Romanò




Savona Home Garden
Savona Home Garden è un intervento edilizio che ha visto la trasformazione in un vecchio magazzino ormai in disuso all’interno del cortile del bel palazzo di fine Ottocento di via Savona 25
Milano – PORTA GENOVA – Via Savone 25 > Savona Home Garden (nella mappa Urbanfile codice: PG8) (residenziale) (nuova costruzione con demolizione)
- inizio cantiere: gennaio 2023
- conclusione cantiere: novembre 2024
- committente: Sadas srl
- progetto architettonico: E Plus Studio
- foto: Elisa Ducoli e Riccardo Gatti (drone)







SAVONA 53
Via Savona 53 è un palazzo di edilizia residenziale per operai di inizio Novecento (1910-1920), realizzato nel classico e consolidato stile eclettico con piccoli decori tendenti al liberty.
E’ partita una ristrutturazione edilizia per Aptafin Spa con un progetto firmato da Scandurra Studio Associati.
Milano – PORTA GENOVA – Via Savone 53 > SAVONA 53 (nella mappa Urbanfile codice: PG17) (? terziario residenziale commerciale ricettivo) (ristrutturazione) (riqualificazione) (manutenzione straordinaria)
- inizio cantiere: giugno 2025
- conclusione cantiere:
- committente: Aptafin spa – Roma, RM
- progetto architettonico: SSA – Scandurra Studio Architettura srl
- DL: SSA – Scandurra Studio Architettura srl
- RL: per. ind. Fernando Carbone @ Romeo Safety Italia srl – Milano, MI
- CSP/CSE: per. ind. Damiano Romeo @ Romeo Safety Italia srl – Milano, MI
- direttore cantiere: ing. Sergio Fornari @ Fornari Costruzioni srl – Milano, MI
- assistente tecnico: geom. Andrea Roma @ ???
- impresa esecutrice: Fornari Costruzioni srl – Milano, MI






- Referenze immagini: Roberto Arsuffi, Archivio Architetto Piero Bottoni
- Porta Genova, Solari, via Solari, Via Savona, Zona Tortona, Corso Genova, Piero Bottoni, Riqualificazione, Acquedotto, Viale Papiniano, Via Daniele Crespi, Piazzale Cantore, Viale Coni Zugna, Olona