Progetto Darsena parte 6 – La Pescheria

Anche la pescheria, oramai storica, di Porta Ticinese avrà nuova vita nel nuovo edificio che sostituirà il baracchino ora esistente: avrà tutt’attorno una sorta di piccola piazza condivisa col BikeMi e con la famosa quercia che finalmente sarà meno circondata dal traffico. La pavimentazione della “piazza” sarà realizzata in tronchetti di granito (sanpietrini), nelle vicinanze verranno messe a dimora due piante e verranno allargate e create nuove aiuole.

Fronte della Pescheria

Lato di Piazza XXIV Maggio, dove sarà presente la pescheria

Piantina dell’edificio

Lati della pescheria

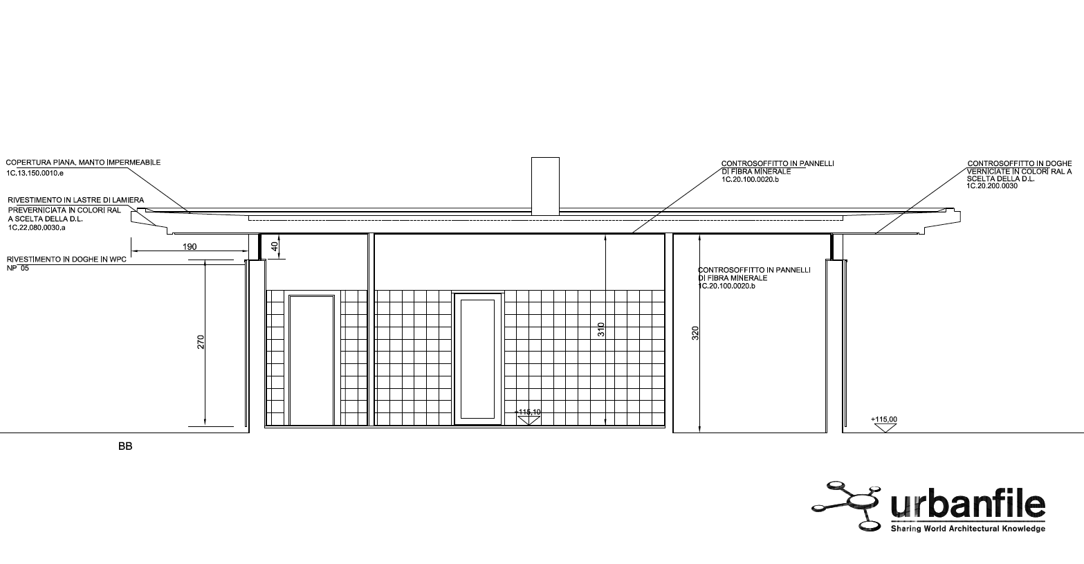
Spaccato dell’edificio

Per l'utilizzo delle immagini scrivere a info@dodecaedrourbano.com

Lascia un commento