Milano, Porta Monforte.
Gennaio 2026. Finalmente sembra avviarsi il progetto di riqualificazione dell’edificio di via Pietro Mascagni 8, a Porta Monforte, abbandonato ormai da decenni. Da alcune settimane il cantiere appare nuovamente attivo e nuovi cartelli sulle cesate fanno sperare in una reale ripartenza, dopo il nulla di fatto del tentativo avviato nel 2018.
L’immobile sorge in una delle strade più eleganti della città, in un contesto ricco di palazzi storici e architetture di pregio, ma versa in stato di abbandono da molti anni. È noto soprattutto come sede del Nuovo Cinema Arti, molto frequentato da bambini e ragazzi negli anni Ottanta e Novanta, ma la sua storia è ben più antica.
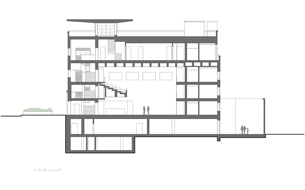
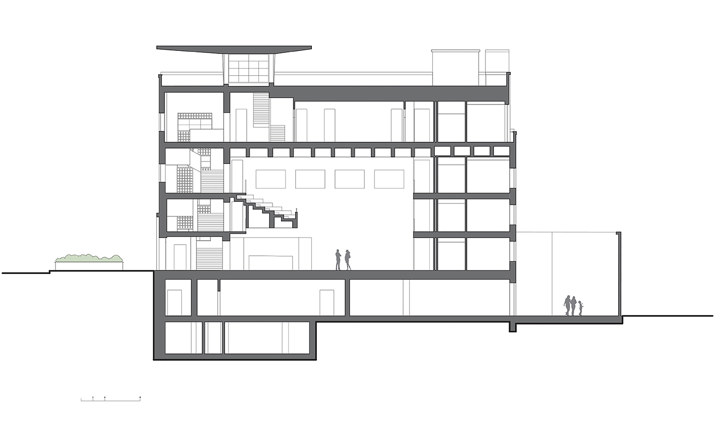
Costruito tra il 1934 e il 1935 nell’area di nuovo sviluppo immobiliare del periodo, dall’architetto Mario Cereghini come Casa del Dirigente dell’Opera Nazionale Balilla, rappresenta un significativo esempio di architettura razionalista. Il complesso è articolato in due volumi: uno destinato originariamente a uffici e ambulatori, l’altro ad auditorium, biblioteca e solarium. Realizzato in calcestruzzo armato e laterizio, è caratterizzato dal rivestimento in klinker, dai loggiati con colonne in marmo scuro, dagli oblò di gusto navale e dalla celebre pensilina a sbalzo progettata dall’ingegnere Giorgio Baroni. Al suo interno si trovava anche il Teatro delle Arti.



Gravemente danneggiato dai bombardamenti del 1943, l’edificio venne restaurato dal Comune intorno al 1950 e riconvertito in cinema con il nome Arti. Nel 1977 divenne Nuovo Arti – Casa Disney, per poi chiudere definitivamente nel 2006. Venduto a privati nel 2008, non è mai stato realmente riqualificato, nonostante il tentativo del fondo londinese Trophaeum nel 2018. Il vincolo monumentale imposto nel 2005 ha probabilmente contribuito a rallentare ogni intervento.












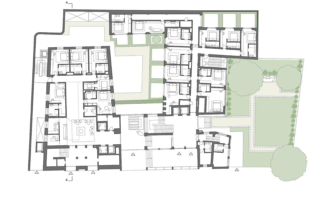
Nel 2020 è stato presentato il progetto firmato da Arassociati, che prevede la trasformazione dell’edificio in una struttura ricettiva. L’intervento adotta un approccio di restauro critico e interpretativo, rispettoso dell’impianto originario ma capace di integrare elementi contemporanei chiaramente riconoscibili.
Elemento centrale del progetto è la conservazione del grande vuoto dell’ex auditorium, che ingloba parte della balconata storica e diventa fulcro distributivo e scenografico dell’edificio. Nuovi volumi ospitano scale e impianti, rivestiti con pannelli traforati color bronzo. È prevista anche la valorizzazione del giardino interno, destinato a dehors della struttura, mentre al piano terra restano due ingressi indipendenti per lobby e ristorante, oltre a un collegamento diretto con una terrazza in copertura utilizzabile per eventi.
Milano – PORTA MONFORTE – Via Pietro Mascagni 8 > MASCAGNI 8 (nella mappa Urbanfile codice: MON4) (ricettivo) (ristrutturazione edilizia) (riqualificazione) (manutenzione straordinaria) (Restauro e ampliamento)
- inizio cantiere: 2020‐in progress
- conclusione cantiere:
- committente: ONB Mode S.r.l.
- progetto architettonico: Arassociati con Studio Berlucchi e Giulia Zambon + Carlotta Puleo








- Referenze immagini: Duepiedisbaglaiti, Roberto Arsuffi
- Info storia del periodo come sala cinema: Giuseppe Rausa
- Porta Monforte, Via Mascagni, Opera Balilla, Riqualificazione, Nuovo Arti, Arassociati
Nell edificio esisteva negli anni 70 uno
spazio adibito a palestra dove noi bambine facevamo ginnastica ritmica e dove sono iniziati i primi corso di ginnastica per la terza età.
Una novità per quei tempi.
Spero facciano uno spazio fruibile al pubblico.
dovrebbe essere la SohoHouse milanese
Veramente c’è un cartello che parla di DEMOLIZIONE….